Location de gîte jusqu'à 14 personnes en Auvergne
Éco-gîte indépendant avec vue panoramique sur la Chaîne des Puys
Jusqu’à 14 personnes · 230 m² · 6 chambres · jacuzzi extérieur
À 5 min de Besse et 15 min de Super-Besse
LE GÎTE
Le Chalet est un éco-gîte indépendant situé sur le domaine du Parador Vert à Saint-Victor-la-Rivière, dans le Puy-de-Dôme, au cœur d’un environnement naturel préservé avec vue dégagée sur la Chaîne des Puys.
Conçu pour accueillir familles, amis ou séjours collectifs, il combine architecture contemporaine, volumes lumineux et prestations haut de gamme, tout en offrant un cadre paisible à proximité immédiate des grands sites du Massif du Sancy.
Avec ses vastes espaces de vie, ses chambres confortables et ses extérieurs ouverts sur la prairie, le chalet permet de se retrouver dans une atmosphère conviviale tout en conservant des espaces de repos pour chacun.
Depuis le gîte, vous rejoignez facilement Besse, le lac Chambon et la station de Super-Besse, tout en profitant du calme d’un hameau niché en pleine nature.
Ce qui rend le Chalet unique
ESPACES
Le chalet développe environ 230 m² répartis sur trois niveaux, permettant d’accueillir confortablement jusqu’à 14 personnes tout en offrant des espaces distincts pour les moments collectifs, le repos et les activités.
Conçu dans l’esprit d’un chalet de montagne traditionnel et modernisé avec des équipements actuels, il associe authenticité, volumes lumineux et confort contemporain pour accueillir familles et groupes dans un cadre naturel préservé.



Rez-de-chaussée
- Entrée avec rangements
- Grande pièce de vie avec cuisine ouverte et salle à manger (table avec rallonge 10–14 personnes)
- Salon convivial avec poêle à bois, télévision et console de jeux
- Suite parentale avec lit 200 cm, salle de bain, douche et WC
- Deux chambres avec lits 160 cm
- Salle de douche avec WC
Étage
- Salon secondaire avec espace bureau et jeux
- Salle de douche avec WC
- Chambre avec lit 140 cm et lit 90 cm (vue sud)
- Chambre avec lit 200 cm et lit 90 cm (vue sud)
- Chambre avec lit 160 cm
- Salle de douche avec jets massants
Sous-sol
- Buanderie avec lave-linge, sèche-linge et WC ; espace de stockage possible pour skis
- Espace forme avec équipement biking
Extérieurs
- Terrasse panoramique tout autour du chalet
- Espaces repas extérieurs orientés sud et est
- Espace détente face à la Chaîne des Puys avec chaises longues
- Jacuzzi extérieur 6 personnes haut de gamme
- Jardin clos avec cabane enfants et prairie privative
Équipements
Cuisine entièrement équipée grand groupe
Lave-Linge et Séche-Linge
Équipements bébé
WI-FI haut débit et espace fermé
Poêle à bois Canadien
Jacuzzi extérieur avec vue panoramique
Plancha et espace repas extérieur
Salle de jeux et console
Voir tous les équipements
Confort intérieur
- Poêle à bois canadien haut rendement
- Chauffage central
- Eau chaude
- Volumes spacieux et lumineux
Chambres & linge
- Draps et serviettes fournis
- Oreillers & couvertures supplémentaires
- Dressing, placards et rangements
Salles de bain
- 3 salles de bain / douche
- Douche avec jets massants
- Sèche-cheveux
- Gel douche, shampoing, savon
Cuisine & repas
- Piano de cuisson Rosière (2 fours)
- Réfrigérateur américain
- Lave-vaisselle
- Cafetière filtre & Nespresso
- Bouilloire électrique
- Grille-pain
- Blender
- Casseroles, poêles, plats
- Vaisselle & couverts complets
- Verres à vin
- Table à manger grande capacité
BUANDERIE
- Lave-linge
- Sèche-linge
- Étendoir à linge
- Fer à repasser
- Produits de nettoyage
DIVERTISSEMENT
- TV Satellite
- Console de jeu XBOX
- Salle de jeux
- Livres Jeux de société
- Epace fitness avec vélo d'appartement
ENFANTS
- Lit bébé et lit parapluie
- Chaise haute
- Baignoire bébé
- Jeux et livres pour enfants
- Aire de jeux extérieure
Internet et télétravail
- Wi-Fi très haut débit
- Connexion ethernet
- Espace de travail / Bureau
Services
- Animaux acceptés
- Arrivée autonome
- Ménage possible pendant le séjour
- Accueil personnalisé par l’hôte
Extérieurs & loisirs
- Grande terrasse panoramique
- Jardin clos
- Espace repas extérieur
- Barbecue
- Jacuzzi extérieur haut de gamme
- Cabane pour enfants
Stationnement & accès
- Parking privatifGarage fermé
- Parking privé (6+ véhicules)
- Bornes de recharge électrique
- Accès indépendant
Inclus dans votre séjour
- Draps
- Savon
- Serviettes
Qualité & Engagement
Des certifications qui témoignent de notre engagement pour la qualité, le confort et le respect de l’environnement.

Label de qualité reconnu pour le confort des locations de vacances

Certification du environnementale des hébergement touristiques européens
Gage de qualité et d’authenticité française

Note moyenne de satisfaction des voyageurs
Note moyenne de satisfaction des voyageurs
ACTIVITéS
AVIS

Melisa
Janvier 2026
Nous avons passé un excellent séjour en famille dans ce superbe chalet! Les équipements sont au top, je pense en particulier aux familles avec enfants et bébés car tout est disponible sur place.
La vue est superbe , les balades aux alentours également
Nous reviendrons avec plaisir !
Ophélie
Janvier 2026
Le chalet est encore mieux en vrai. Très bien équipé, facile à vivre, la vue et le jacuzzi sont vraiment très appréciables. Idéale pour organiser des vacances en famille ou entre amis.
Sophie
Décembre 2025
Rassemblement pour un road trip moto, la maison est très bien situé.
Elle est grande, bien équipé et la literie est confortable.
La maison est encore mieux que sur les photos.
La vue est magnifique et l’environnement tellement calme.
Eloïse
Septembre 2025
Très belle maison, avec une magnifique vue.
Maison très propre et très bien équipé autant en terme de cuisine que des autres équipements.
Cadre hyper sympathique et acceuille tres sympa, rapidement disponible pour la remise des clefs et le rendu des clefs.
Cédric
Novembre 2025
Super séjour entre copains. Le logement est magnifique et le spa est un réel plus.
Belles randonnées autour du chalet. Le chalet est très bien équipé pour 14 personnes. Les chambres sont spacieuses
On recommande !
Sarah et Boris
Mai 2025
QUESTIONS FRéquentes
Quelles sont les heures d’arrivée et de départ ?
L’arrivée se fait entre 16h et 18h, et il est demandé d’envoyer un SMS au 06 62 80 20 17 pour préciser votre heure d’arrivée.
Il est possible d’arriver après 18h, les clés étant mises à disposition avec un accueil réalisé le lendemain matin.
Peut-on accéder au gîte en cas de neige et comment se passe le stationnement ?
L’accès reste possible en hiver avec un équipement adapté (pneus hiver ou chaînes), la route étant régulièrement dégagée et le stationnement accessible.
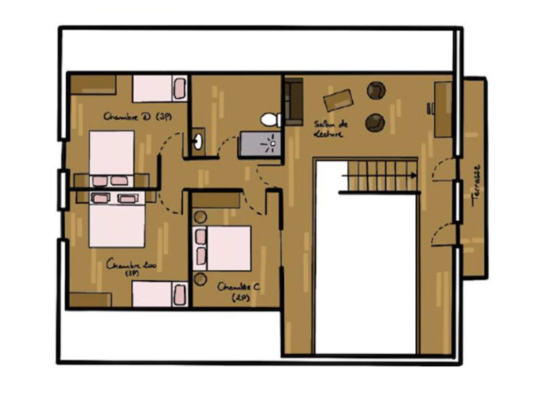
Quelle est la disposition des chambres et des lits ?
La disposition détaillée des chambres et des lits est disponible via les plans ci-dessous.



Quel type de cafetière est à disposition ?
Le Chalet est équipé d’une cafetière à grain ainsi que d’une cafetière filtre pour s’adapter à vos habitudes de consommation.
Le café est-il fourni ?
Y a-t-il des équipements de nettoyage ?
Tout le nécessaire de nettoyage est disponible afin de vous permettre d’entretenir facilement le gîte pendant votre séjour.
Les consommables sont-ils fournis ?
Les produits essentiels tels que les pastilles de lave-vaisselle, les sacs poubelle et le papier toilette sont fournis pour le début du séjour.
Le linge de maison est-il fourni ?
Le linge de maison est entièrement fourni, incluant les draps, serviettes de toilette, torchons et tapis de bain.
Y a-t-il des appareils à raclette et fondue ?
Des appareils à raclette et à fondue sont disponibles en quantité suffisante, avec rallonges incluses pour plus de confort.
Y a-t-il des équipements pour bébé ?
Des équipements pour bébé sont disponibles sur demande, incluant une chaise haute, une baignoire et un lit bébé (sans draps).
Quel type de barbecue est disponible ?
Le gîte est équipé d’une plancha au gaz, idéale pour vos repas en extérieur.
BLOG

Où dormir dans le Massif du Sancy ? Nos conseils pour choisir votre gîte en Auvergne
Entre volcans, lacs d’altitude et villages de caractère, le Massif du Sancy est l’une des destinations nature les plus appréciées d’Auvergne. Que l’on vienne pour randonner, skier à Super-Besse ou simplement se ressourcer quelques jours, le choix de l’hébergement joue un rôle essentiel dans la réussite du séjour.

Les plus belles randonnées autour du Sancy : itinéraires, conseils et panoramas incontournables
Le Massif du Sancy est l’un des terrains de jeu les plus spectaculaires pour les amateurs de randonnée en France. Entre volcans, crêtes, lacs d’altitude et vallées sauvages, il offre une diversité de paysages exceptionnelle, accessible à tous les niveaux.
Les plus beaux villages autour du Massif du Sancy
Au cœur du Parc naturel régional des Volcans d’Auvergne, le Massif du Sancy ne se résume pas seulement à ses sommets et à ses paysages volcaniques. Le territoire est également riche d’un patrimoine remarquable, avec plusieurs villages qui ont su préserver leur caractère authentique.
LES GÎTES DU PARADOR VERT
Découvrez nos autres destinations
Prolongez l’expérience Parador Vert et explorez nos autres lieux de séjour, entre nature, villes d’eau et art de vivre.
